Revue Technique Subaru Impreza: K: Code de panne 28 - detecteur abs anormal (arriere gauche)
DIAGNOSTIC:
- Signal du détecteur ABS défectueux (bruit, signal irrégulier, etc.)
- Faisceau/connecteur défectueux
SYMPTOME:
- L'ABS ne fonctionne pas.
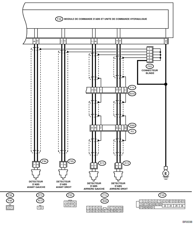
SCHEMA ELECTRIQUE: MODELE CONDUITE A GAUCHE

SCHEMA ELECTRIQUE: MODELE CONDUITE A DROITE

| Nº | Etape | Vérifier | Oui | Non |
| 1 | VERIFIEZ L'ETAT DE REPOSE DU DETECTEUR ABS.
Mettez le contact d'allumage sur "OFF". Couple de serrage: 32+-10 N*m (3,3+-1,0 kgf-m) |
Est-ce que les boulons de fixation du détecteur ABS sont serrés correctement? | Passez à l'étape 2. | Serrez correctement les boulons de fixation du détecteur ABS. |
| 2 | VERIFIEZ L'ENTREFER DU DETECTEUR ABS.
Mesurez l'entrefer entre le disque cranté et la pièce du détecteur ABS sur tout le périmètre du disque. Disque avant 0,3 - 0,8 mm |
Est-ce que l'entrefer est dans les limites de caractéristiques? | Passez à l'étape 3. | Réglez l'entrefer.
NOTE: Réglez l'entrefer à l'aide d'une entretoise (nº de pièce 26755AA000). Si les entretoises ne suffisent pas, remplacez le détecteur ou le disque cranté usé |
| 3 | PREPAREZ L'OSCILLOSCOPE. | Dispose-t-on d'un oscilloscope? | Passez à l'étape 4. | Passez à l'étape 5. |
| 4 | VERIFIEZ LE SIGNAL DE DETECTEUR ABS.
1) Levez les quatre roues du sol. 2) Mettez le contact d'allumage sur "OFF". 3) Connectez l'oscilloscope au connecteur. 4) Mettez le contact d'allumage sur "ON". 5) Faites tourner les roues et mesurez la tension à la fréquence spécifiée. <Voir ABS-16, FORME D'ONDE, Signal E/S du module de commande.> NOTE: Quand cette inspection est terminée, le module de commande ABS enregistre parfois le code de panne 29. Connecteur et borne |
Est-ce que la courbe de l'oscilloscope est régulière comme illustrée? | Passez à l'étape 8. | Passez à l'étape 7. |
| 5 | VERIFIEZ SI LE DETECTEUR ABS OU LE DISQUE CRANTE EST CONTAMINE.
Déposez le rotor à disque ou le tambour du moyeu en fonction du code de panne. |
Est-ce que la pièce du détecteur ABS ou le disque cranté est contaminé par la saleté ou d'autres corps étrangers? | Nettoyez soigneusement la saleté ou les corps étrangers. | Passez à l'étape 6. |
| 6 | VERIFIEZ SI LE DETECTEUR ABS OU LE DISQUE CRANTE EST ENDOMMAGE. | Est-ce que le composant du détecteur ABS ou le disque cranté est cassé ou endommagé? | Remplacez le détecteur ABS ou le disque cranté.
Avant: <Voir ABS- 14, Détecteur ABS avant.> Arrière: <Voir ABS-17, Détecteur ABS arrière.> et avant: <Voir ABS-19, Disque cranté avant.> Arrière: <Voir ABS- 20, Disque cranté arrière.> |
Passez à l'étape 7. |
| 7 | VERIFIEZ LE VOILE DU DISQUE CRANTE.
Mesurez le voile du disque cranté. |
Est-ce que le voile est moins de 0,05 mm? | Passez à l'étape 8. | Remplacez le disque cranté. Avant: <Voir ABS-19, Disque cranté avant.> Arrière: <Voir ABS- 20, Disque cranté arrière.> |
| 8 | VERIFIEZ LA RESISTANCE DU DETECTEUR ABS.
1) Mettez le contact d'allumage sur "OFF". 2) Déconnectez le connecteur du détecteur ABS. 3) Mesurez la résistance entre les bornes de connecteur du détecteur ABS. Borne |
Est-ce que la résistance est comprise entre 1 et 1,5 kΩ? | Passez à l'étape 9. | Remplacez le détecteur ABS. Avant: <Voir ABS-14, Détecteur ABS avant.> Arrière: <Voir ABS-17, Détecteur ABS arrière.> |
| 9 | VERIFIEZ SI LE DETECTEUR ABS EST COURT-CIRCUITE A LA MASSE.
Mesurez la résistance entre le détecteur ABS et la masse de châssis. Borne |
Est-ce que la résistance est plus de 1 MΩ? | Passez à l'étape 10. | Remplacez le détecteur ABS. Avant: <Voir ABS-14, Détecteur ABS avant.> Arrière: <Voir ABS-17, Détecteur ABS arrière.> |
| 10 | VERIFIEZ LE FAISCEAU/CONNECTEUR ENTRE LE MCABS-UCH ET LE DETECTEUR ABS.
1) Connectez le connecteur au détecteur ABS. 2) Déconnectez le connecteur du MCABS-UCH. 3) Mesurez la résistance aux bornes de connecteur du MCABS-UCH. Connecteur et borne |
Est-ce que la résistance est comprise entre 1 et 1,5 kΩ? | Passez à l'étape 11. | Réparez le faisceau/ connecteur entre le MCABS-UCH et le détecteur ABS. |
| 11 | VERIFIEZ SI LE FAISCEAU EST COURT-CIRCUITE A LA MASSE.
Mesurez la résistance entre le connecteur de MCABS-UCH et la masse de châssis. Connecteur et borne |
Est-ce que la résistance est plus de 1 MΩ? | Passez à l'étape 12. | Réparez le faisceau/ connecteur entre le MCABS-UCH et le détecteur ABS. |
| 12 | VERIFIEZ LE CIRCUIT DE MISE A LA MASSE DU MCABS-UCH.
Mesurez la tension entre le MCABS-UCH et la masse de châssis. Connecteur et borne (F49) Nº 23 - MASSE: |
Est-ce que la résistance est moins de 0,5 Ω? | Passez à l'étape 13. | Réparez le faisceau de mise à la masse du MCABSUCH. |
| 13 | VERIFIEZ S'IL Y A MAUVAIS CONTACT DANS LES CONNECTEURS. | Est-ce qu'il y a mauvais contact dans les connecteurs entre le MCABS-UCH et le détecteur ABS? | Réparez le connecteur. | Passez à l'étape 14. |
| 14 | VERIFIEZ LES SOURCES DE BRUIT DE SIGNAL. | Est-ce que le téléphone de voiture ou le radio-télécommande est installé correctement? | Passez à l'étape 15. | Installez correctement le téléphone de voiture ou le radio-télécommande. |
| 15 | VERIFIEZ LES SOURCES DE BRUIT DE SIGNAL. | Y a-t-il des sources de bruit (antenne par exemple) installées près du faisceau de détecteur? | Installez les sources de bruit loin du faisceau de détecteur. | Passez à l'étape 16. |
| 16 | VERIFIEZ LE CIRCUIT SCELLE.
1) Connectez tous les connecteurs. 2) Mesurez la résistance entre le connecteur scellé et la masse de châssis. Connecteur et borne NOTE: Pour les Codes de panne 22 et 24: |
Est-ce que la résistance est moins de 0,5 Ω? | Passez à l'étape 17. | Réparez le faisceau scellé. |
| 17 | VERIFIEZ LE MCABS-UCH.
1) Connectez tous les connecteurs. 2) Effacez la mémoire. 3) Exécutez le mode d'inspection. 4) Lisez le code de panne. |
Est-ce que le même code de panne que celui produit par le diagnostic actuel est toujours produit? | Remplacez le MCABS-UCH.
<Voir ABS-7, Module de commande ABS et unité de commande hydraulique (MCABUCH).> |
Passez à l'étape 18. |
| 18 | VERIFIEZ L'APPARITION D'AUTRES CODES. | D'autres codes de pannes sont-ils produits? | Passez au diagnostic correspondant au code de panne. | Un bruit parasite temporaire. |
G: Code de panne 27 - detecteur abs anormal (circuit ouvert ou tension d'entree trop elevee) (arriere gauche)
DIAGNOSTIC:
Détecteur ABS défectueux (câble cassé, tension d'entrée trop élevée)
Connecteur de faisceau défectueux
SYMPTOME:
...
L: Code de panne 29 - signal anormal du detecteur abs (un des quatre)
DIAGNOSTIC:
Signal du détecteur ABS défectueux (bruit, signal irrégulier, etc.)
Disque cranté défectueux
Les roues tournent librement pendant une lo ...
D'autres materiaux:
Fonctions
L’affichage multifonctions (LCD couleur) dispose des fonctions suivantes
Description
Affiche des messages utiles, tels que des notifications, etc.
Affiche des écrans de base (par exemple, l’écran de consommation
de carburant, etc.)
Règle et ajuste la notification d’entretien
De plus, l’affichage multifonctions (LCD couleur) peut également être
utilisé pour régler et ...